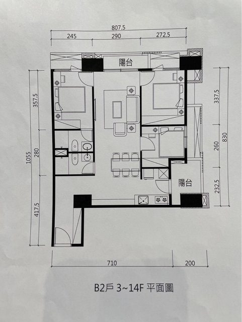
一家四口 小孩還小 7y 3y 這週末看了新潤青樺的預售屋 選了一戶 中低樓層在考慮 B2 中低樓層 主建物:21.04 附建物:2.47 公共部分:11.72 社區平面圖 https://i.imgur.com/J28SycV.jpg
https://i.imgur.com/gZvu0xE.jpg
家俱配置示意圖 https://i.imgur.com/tGda1fR.jpg
螢光筆標記的地方是有 橫樑 黑色標記是 柱 橘色方塊 是 AC B2平面圖 https://i.imgur.com/BHzR4od.jpg
代售小姐很認真介紹,不過我們沒有預售屋的經驗,想聽一些意見跟注意事項 樓層不選高樓層沒特別愛,另外就是價錢考量 B3 B2 為 鏡像格局,但看起來 B3較優但是只剩下高樓 初步想法 1. 餐桌應該是不需要的..家中不常開火,外食居多 2. 若要餐桌,旁邊的廁所門會改個方向 (由 柱的對面 那邊開,弄成隱形門? ) 3. 右邊兩間房 牆面往上移動 讓兩間大小差不多 4. 沒有餐桌的情況下,右下房門往下一點 開門門後貼 衣櫃 讓沙發那面牆延伸下來一點 先謝謝各位的意見 -- ※ 發信站: 批踢踢實業坊(pttweb.org.tw), 來自: 111.248.101.187 (臺灣) ※ 文章網址: https://pttweb.org.tw/home-sale/M.1690196667.A.746
stealk: 1坪多少? 餐桌一定要留的 07/24 19:57
angele: 低樓層開始客變了,建商客變規則還蠻嚴的,跟代銷要來拿 07/24 19:59
angele: 給設計師看看,評估一下,動作要快了。 07/24 19:59
utwosf: 同價位要買B3(不能說的秘密) 07/24 21:04
Ivan1127: 1雙衛浴不開窗 2次臥跟隔壁的棟距 3走道好長+吃柱 以上 07/24 21:10
Y949731: 有錢人為啥都想包養 07/24 21:10
Ivan1127: 好好想一下 07/24 21:10
u4fu3: 就算是外食 沒有餐桌要在哪吃飯啊@@ 07/24 21:40
accelerate: 新潤最近很精彩 可看君頤和明日莊園 頗呵 07/24 21:43
mobinyu: 新潤… 07/24 21:43
Evilbear: 單價? 07/24 22:40
T730733: 有人被洋鬼子包養過嗎 07/24 22:40
Evilbear: 如果低於60可以買 07/24 22:40
tako761208: 實價登錄可以查到 B3 價格 07/24 22:52
mp60707: 主臥右邊的樑 螢光筆故意不畫進去 07/24 23:35
mp60707: 畫個梁都不誠實 07/24 23:36
mp60707: 隔壁棟蓋起來後 幾乎沒棟距唷 07/24 23:38
FireStation: 到底要多有錢才會想包養 07/24 23:38
lucky466: 吃兩個柱子 07/25 00:22
Evilbear: 看了一下買B2划算啊 07/25 00:50
achter: 新潤...合約務必詳細審閱 07/25 02:07
tako761208: 請問合約有哪邊需要注意的? 07/25 02:37
taiwanlin7: 大園女屋主影片被下架? 07/25 02:44
Thobel: 包養SD = aSugarDating 07/25 02:44
piggip: 新潤明日莊園 07/25 11:26
jovidream: 留言說屋主和建商和解,要求下架影片 07/25 12:21
kai1007: 合約仔細看,沒看清楚有些會損失買方的權益,新潤客變限 07/25 12:56
kai1007: 制很多,在客變時最好錄影錄音,會有選了之後又會突然沒 07/25 12:56
kai1007: 料之類的問題,驗屋要相當仔細小心,最好去認識案場的長 07/25 12:56
Reji: 閨蜜上包養網還推薦我... 07/25 12:56
kai1007: 官,處理會比較快 07/25 12:56